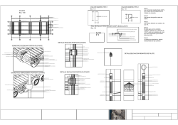
ELEVACION FRONTAL - EMPALME FINAL Esc. 1:10 PLANTA DETALLE EMPALME FINAL Esc. 1:10 PLANTA DETALLE EMPALME INTERMEDIO Esc. 1:10 PLANO ESTRUCTURA Esc. 1:50 60 PERNO 3/8" PERNO 3/8" 0 20 VIGA DE MADERA 3x6" DIAGONAL VIGA DE MADERA 3x6" DIAGONAL A' B' C' PILOTE DE MADERA 0.30 4.00 4.00 V 2 V-L PERNO 3/8" PILOTE DE MADERA PERNO 3/8" PILOTE DE MADERA V PERNO 3/8" 2' V-L VIGA DE MADERA 4x16" HORIZONTAL VIGA DE MADERA 4x16" HORIZONTAL V-T 1.50 V-A 220 V-A V-T EMPALME DE VIGAS CORTE VERTICAL VIGA DE MADERA 3x6" DIAGONAL VIGA DE MADERA 4x6" TRANSVERSAL VIGA DE MADERA 3x6" DIAGONAL V-L 1 VIGA DE MADERA 4x6" TRANSVERSAL A 1' V B PERNO 3/8" C VIGA DE MADERA 4x6" TRANSVERSAL PLANTA DETALLE EMPALME INTERMEDIO Esc. 1:10 PLANO PLANTA Esc. 1:50 B' 4.00 V 2 POS 2 PERNO 3/8" PERNO 3/8" VIGA DE MADERA 4x16" HORIZONTAL V V-L Esc. 1:20 PILOTE DE MADERA C' 4.00 VIGA DE MADERA 3x6" DIAGONAL PLANTA DETALLE EMPALME FINAL Esc. 1:10 PILOTE DE MADERA A' 0.30 VIGA DE MADERA 4x16" HORIZONTAL VIGA DE MADERA 3x6" DIAGONAL V-L V 2' VIGA DE MADERA 3x6" DIAGONAL V-L 1.50 V-T V-A V-T V-A VIGA DE MADERA 3x6" DIAGONAL PERNO 3/8" V VIGA DE MADERA 4x16" HORIZONTAL EMPALME DE VIGAS CORTE VERTICAL V-L 1 V-L V 1' V VIGA DE MADERA 3x6" DIAGONAL VIGA DE MADERA 3x6" DIAGONAL 1.20 PERNO 3/8" POS 1 VIGA DE MADERA 4x6" TRANSVERSAL VIGA DE MADERA 4x6" TRANSVERSAL A B C 2.40 ELEVACION FRONTAL Esc. 1:50 A B POS 1 Nota 1: L 1 2 fc=210Kg/cm2 fy=4200 Kg/cm2 e=5cm. = Recubrimiento. A MURO DE ARRANQUE O VIGA VL MODULO MUELLE MADERA 0.80 0.31 Nota 2: fc=280Kg/cm2 fy=4200 Kg/cm2 e=2.5cm. = Recubrimiento 2.70 Nota 3: Nota 4: POS 2 1.50 tratamiento con creosota Nota 5: Todas las estructuras de madera con madera dura, tratamiento de creosota. Todas las fijaciones en seco con elementos galvanizados. 0.80 1.20 PLANILLA DE FIERROS - DOLPHIN POS. ESQUEMA 1 a 2 a d b c d b c LONGITUDES (m) DIST. (m) (mm) 0.17 9.5 15 0.76 1.16 0.76 1.16 3.84 57.60 0.59 0.20 9.5 7 0.76 2.36 0.76 2.36 6.24 43.68 0.59 TOTAL (Kg) CANT. a b c d e PARCIAL TOTAL KG/M PESO T. (kg) 8.85 4.13 12.98
© Copyright 2026